Bausatzhaus „Bad Dürrheim“ – Effizienzhaus 40
Flachdachhaus inklusive Planung, Architektur und Statik
Flachdachhaus inklusive Planung, Architektur und Statik
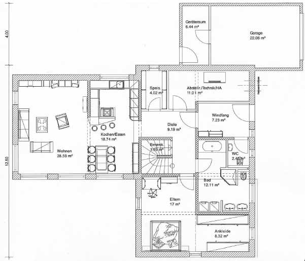
Das Flachdachhaus „Bad Dürrheim“, mit 2 Etagen, hat eine Wohn- und Nutzfläche von ca. 205 m².
Im Erdgeschoss befindet sich der gesamte Wohnbereich und das Elternschlafzimmer mit Ankleide und geräumigem Bad. Im Obergeschoß befinden sich 2 Kinderzimmer, ein Kinderbad und Gästezimmer mit Balkon und bodentiefen Fenstern.
Das Komplettbausatz „Bad Dürrheim“ kann auf Wunsch individuell verändert werden!
Sie müssen den Inhalt von reCAPTCHA laden, um das Formular abzuschicken. Bitte beachten Sie, dass dabei Daten mit Drittanbietern ausgetauscht werden.
Mehr InformationenSie sehen gerade einen Platzhalterinhalt von Turnstile. Um auf den eigentlichen Inhalt zuzugreifen, klicken Sie auf die Schaltfläche unten. Bitte beachten Sie, dass dabei Daten an Drittanbieter weitergegeben werden.
Mehr InformationenSie sehen gerade einen Platzhalterinhalt von TrustIndex. Um auf den eigentlichen Inhalt zuzugreifen, klicken Sie auf die Schaltfläche unten. Bitte beachten Sie, dass dabei Daten an Drittanbieter weitergegeben werden.
Mehr Informationen